Сауна из контейнера «Бухта Пар» | 14 м²
Современное тепло. Атмосфера настоящей парной.
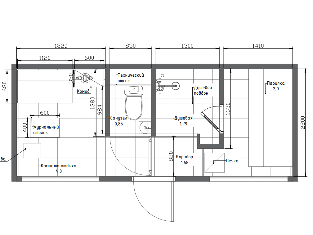
«Бу́хта-Пар» — это полноценная модульная баня с продуманной планировкой и стильным интерьером. Подойдёт для личного участка, базы отдыха или глэмпинга.
Парная с электропечью 7 кВт и фольгированным утеплением (ППУ 7–8 см)
Комната отдыха, душевая и санузел — всё в одном модуле
Пол — керамогранит, тёплые полы в душевой и комнате отдыха
Стены и потолок: влагостойкий кварцвинил + вагонка из лиственницы
Приточный клапан и вентиляционная форточка для комфортного микроклимата
Панорамные окна — максимум света и уюта
Дополнительные опции: дровяная печь с топкой внутри, обливная кадка, мебель по планировке, техника, терраса, навес-маркиза.
«Бу́хта-Пар» — минимализм, наполненный теплом.
от 1 700 000 ₽
Представитель
BUHTA
Директор по продажам
