Дом из контейнера «Бухта Мини» | 14 м²
Компактный. Уютный. Готовый к проживанию.
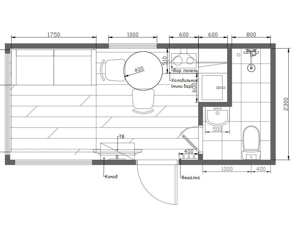
«Бу́хта Мини» — идеальный вариант для дачи, глэмпинга или аренды. Внутри — всё, что нужно для комфортного отдыха или жизни.
Утепление стен и потолка: ППУ 7–10 см
Внутренняя отделка: пол - ламинат, стены - вагонка
Панорамное остекление — максимум света и уюта
Санузел и душевая: керамогранит, тёплый пол
Установлен бойлер и полноценная электрика
Минимализм, в который влюбляешься с первого взгляда.
от 1 800 000 ₽
Представитель
BUHTA
Директор по продажам
